Kortenaerlaan 27, Harderwijk

€ 419.500,- k.k.

Bekijk de specificaties

  • Bouwjaar
    1957
  • Woonoppervlakte
    101 m2
  • Aantal kamers
    3
  • Perceeloppervlakte
    231 m2

Omschrijving

Uitgebouwde hoekwoning gelegen op een perceel van 231 m² met een dubbele oprit, stenen berging en een overkapping met bergruimte in de achtertuin!

De woning heeft een goede lichtinval door de grote raampartijen en beschikt door de uitbouw over mooie afmetingen voor een zitgedeelte en eetgedeelte. Een leuk detail zijn de openslaande deuren naar de tuin. De open keuken is voorzien van inbouwapparatuur. De badkamer is voorzien van een inloopdouche en wasmachineaansluiting of wastafelaansluiting. In de hal een kelderkast en het toilet met fonteintje. Op de 1e verdieping 2 ruime slaapkamers, een toilet en een balkon (2 m²). Het is eenvoudig om drie slaapkamers te realiseren door het plaatsen van een wand. Via een vlizotrap is de bergzolder bereikbaar.

De achtertuin heeft afmetingen van circa 10,50 meter x 7,00 meter. Ideaal zijn de openslaande deuren aan de zijkant waardoor je met bijvoorbeeld de motor of bakfiets makkelijk de tuin in kan. Verder is de tuin op het noordoosten gelegen en is voorzien van een stenen berging (7 m²) met elektra. In de overkapping kunnen heerlijke zomeravonden worden beleefd en hier zit nog een berging (8 m²).

De ligging van de woning is perfect. Gelegen in de kindvriendelijke woonwijk ‘De Wittenhagen’ met winkelvoorzieningen, scholen, sportaccommodaties, uitvalswegen en de bossen in de nabijheid.

Verder is de woning gebouwd in 1957 en heeft de woning een energielabel D. Het geheel wordt verwarmd middels Remeha c.v.-ketel uit 2025 onderhouden. Het woonoppervlak bedraagt 101 m², de inhoud van deze woning is 392 m³ en het perceel bedraagt 231 m². De externe bergruimte is in totaal 15 m² en de gebouw gebonden buitenruimte 2 m².

Maak je hier jouw (t)huis van? Kom kijken en we vertellen je graag meer over deze woning!

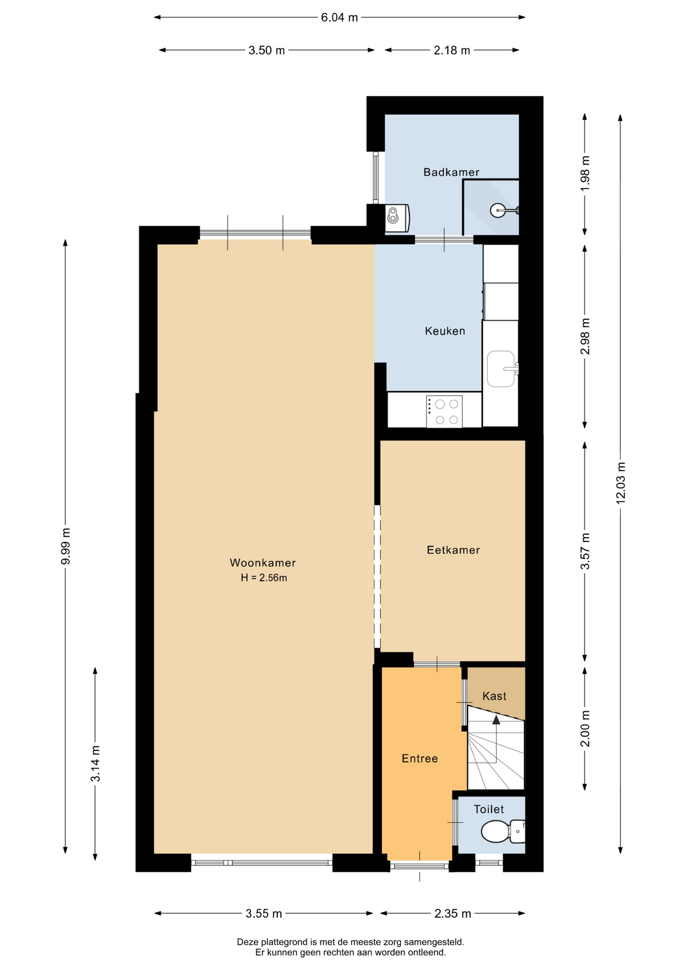
INDELING
Begane grond: Hal, toilet, kelderkast, meterkast, woonkamer, open keuken, badkamer.
1e Verdieping: Overloop, 2 slaapkamers (mogelijkheid voor een derde slaapkamer), toilet, balkon.
2e Verdieping: Bergzolder via vlizotrap te bereiken.

Aanvaarding: in overleg.

+ Lees de volledige beschrijving

Kenmerken

Status
Beschikbaar
Koopprijs
€ 419.500,- k.k.
Aangeboden sinds
Minder dan een maand
Aanvaarding
in overleg
Plaats
HARDERWIJK
Type
hoekwoning
Soort
eengezinswoning
Bouwjaar
1957
Bouwvorm
bestaande bouw
Liggingen
in woonwijk
Gebruiksoppervlakte woonfunctie
101 m2
Inhoud
392 m3
Aantal kamers
3
Aantal slaapkamers
2
Aantal verdiepingen
3
Energieklasse
D
Energielabel einddatum
11 juni 2028
Isolatievormen
dakisolatie, dubbel glas
Soorten warm water
c.v.-ketel
Tuin
achtertuin, voortuin
Oppervlakte tuin
231 m2
Schuur/berging
aangebouwd steen
Voorzieningen
voorzien van elektra
Dak type
zadeldak
Onderhoud binnen
redelijk
Onderhoud buiten
redelijk
Voorzieningen
buitenzonwering, mechanische ventilatie

Geïnteresseerd in deze woning? Maak een afspraak voor een bezichtiging.

  • Dit veld is bedoeld voor validatiedoeleinden en moet niet worden gewijzigd.

Altijd al het huis van uw dromen willen vinden? Daag ons uit!

Vertel ons waar u naar op zoek bent en wij gaan voor u aan de slag!

Stap 1 van 2